网站首页
关于我们
产品展示
企业实力
经典案例
新闻资讯
人力资源
联系我们
衡 / 品 / 质 , 融 / 未 / 来
各类工业控制柜及制冷系统的设计、研发、生产、集成及现场安装服务
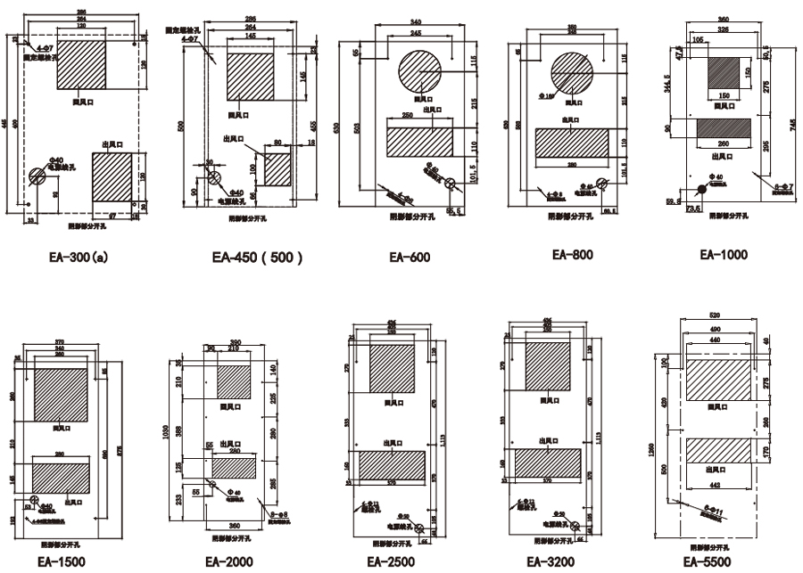
技术参数
Technical parameter
测试工况:电柜内侧干球温度35℃,湿球温度26℃,电柜外侧干球温度35℃。
返回列表